1 (13)
Etudes de structures Ouvrages d'art
2 (11)

A16 - Elargissement au-dessus de la RN42

Boulogne-sur-Mer (62)

Réalisation d'études d'exécution par les équipes de Prodetis dans le cadre de l'élargissement de l'autoroute A16 au-dessus de la route nationale RN42.

Période de réalisation: 2020 - 2023 

SECTEUR D'ACTIVITE Concession (auto)routière

MAÎTRE D'OUVRAGE SANEF

TYPE D'OUVRAGE Ouvrages d'art, Infrastructures linéaires

ENTITÉS Prodetis

AGENCES - SERVICES Paris Ile-de-France Ouest

Le projet

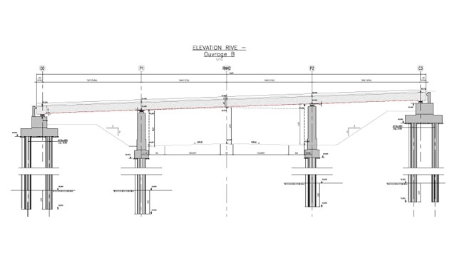
Reconfiguration du diffuseur 31 de liaison entre la RN42 et l'A16 à Saint Martin Boulogne (62).

Le PI 405 est élargi côté Est et Ouest par deux tabliers à poutres PRAD en T inversés. Chaque élargissement est constitué d'un tablier de 4 poutres à 3 travées.

L'ouvrage est long d'environ 49 m et le tablier est large d'environ 5 m.

Les expertises mobilisées

icon Etudes D'exécution De Projet D'infrastructure

Etudes de structures

Nos missions

Dans le cadre de ce projet, Prodetis réalise les études d'exécution des appuis et du clavage entre les tabliers existants et les élargissements.

Les élargissements en poutres en T inversées précontraintes ont été étudiés conjointement avec le pré-fabricant.

Les études menées par nos équipes concernaient les réalisations suivantes:

  • Elargissements Est et Ouest
  • Nouveaux garde grève et dalle de transition sur les culées existantes
  • Dalles de frottement côté Est et Ouest

Pour aller plus loin

A retenir

soulignement
  • Etudes de structures
  • Ouvrages d'art
  • Ouvrages linéaires