Presse1
Géotechnique Bâtiments industriels
Presse2
Presse3

Installation d'une presse et de trois lasers

Toulouse (31)

Mise en place d'une presse de 135 tonnes et de 3 lasers de 13,5 tonnes chacun. 

Période de réalisation : Mars 2020

SECTEUR D'ACTIVITE Industrie

MAÎTRE D'OUVRAGE AIRBUS

TYPE D'OUVRAGE Bâtiments industriels

ENTITÉS Fondasol

AGENCES - SERVICES Toulouse

Le projet

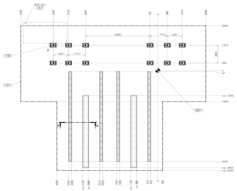
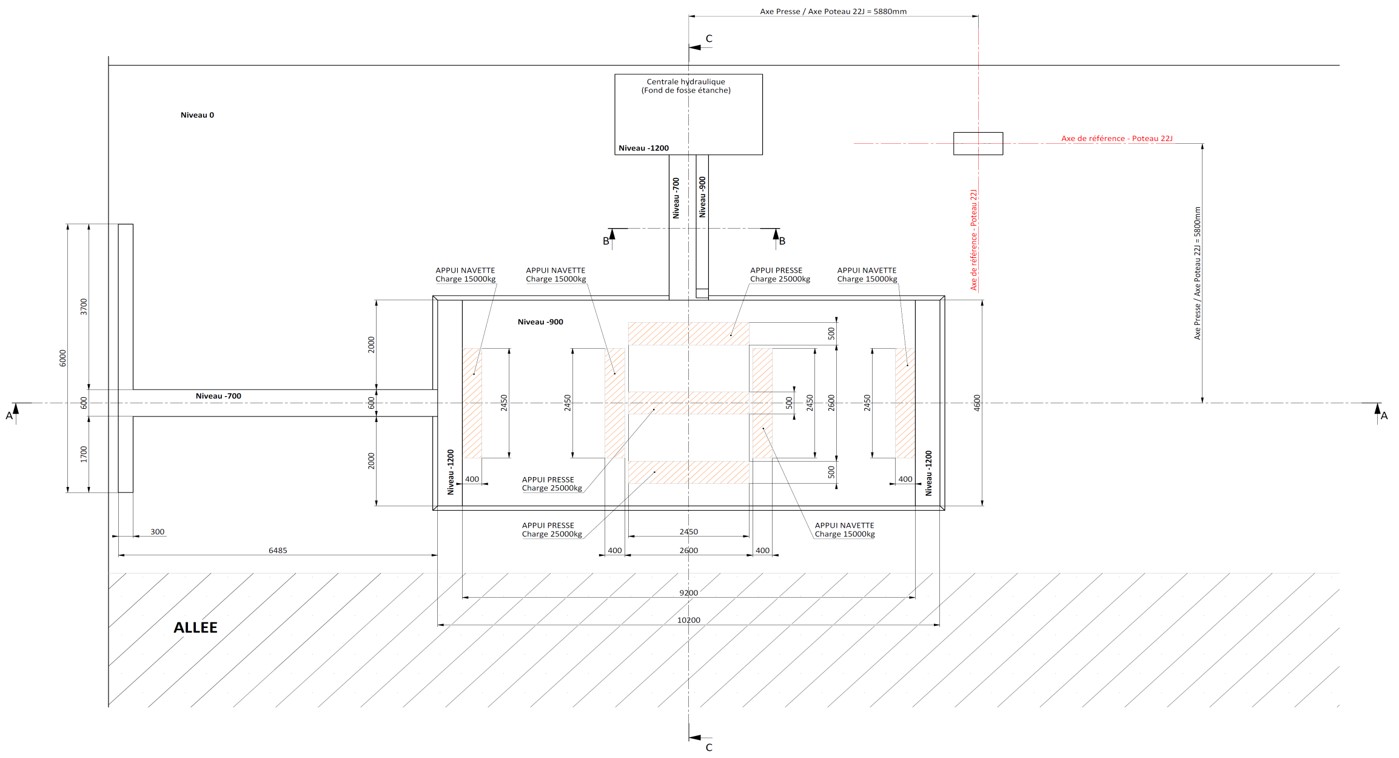
Le constructeur aéronautique européen AIRBUS construisant la moitié des avions de ligne produits dans le monde a missionné FONDASOL pour la mise en place d'une presse de 135 tonnes et de 3 lasers d'environ 13,5 tonnes chacun sur le site de SAINT-ELOI bâtiment E49.

Ces nouvelles installations devraient offrir une plus grande souplesse pour la production de certains appareils.

L'objectif du projet était de:

  • Définir le système de fondation de la presse
  • Déterminer si le dallage du bâtiment E49 est capable de supporter les charges des 3 lasers ou si les zones d'implantation doivent être renforcées par de nouvelles fondations

Les expertises mobilisées

icon Investigation

Investigations

icon Ingénierie Géotechnique

Ingénierie géotechnique

Nos missions

Campagne d'investigations géotechniques

  • 11 sondages carottés de dallage pour avant trou prélèvement de béton et essai en laboratoire
  • 3 sondages pressiométriques réalisés au taillant en rotopercussion et descendu à 7,5/8,0m de profondeur/arase supérieure du dallage avec réalisation de 17 essais répartis dans ces forages
  • 5 essais de pénétration dynamique au pénétromètre DPSH-B descendus au refus entre 0,3m et 4,3m
  • 1 essai de pénétration dynamique léger de type Panda descendu au refus à 0,4m

Missions d'ingénierie géotechniques (missions G5 + G2 AVP)

  • Etude préliminaire de site
  • Résultats des investigations (plans d'implantation, coupes géologiques et diagrammes des essais in-situ et en laboratoire)
  • Analyse et synthèse du contexte géologique et géomécanique du site et de son influence
  • Caractérisation du dallage et de la couche de forme existante
  • Recommandations sur les adaptations ou modes de fondations à mettre en oeuvre,
  • Hypothèses géotechniques pour la justification des ouvrages
  • Recommandations particulières pour la réalisation des travaux

Pour aller plus loin

A retenir

soulignement
  • Campagne d'investigation géotechnique
  • Missions d'ingénierie géotechnique